Lot 21 OVERVIEW LNRapid City, SD 57702




Mortgage Calculator
Monthly Payment (Est.)
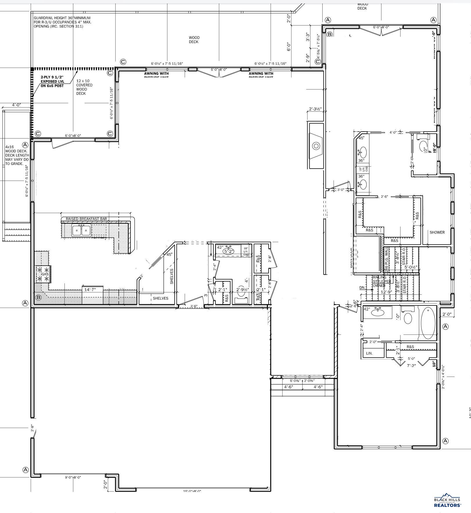
$6,570Listed with TJ Wojtanowicz at Black Hills Realty, 605-863-1920. Welcome to Stoney Creek Reserve, Rapid City’s newest westside development with big views of the Northern Hills, Needles, and Southern Hills. Construction will begin soon—call today to reserve your lot and floor plan. Exclusively built by New House Builds LLC, this ranch-style home is scheduled to start in April 2026, with completion anticipated by November 2026. The plan features 4 bedrooms, 3.5 bathrooms, a 3-car garage, and over 3900 finished square feet. Construction includes full landscaping with an allowance. Similar builds by this trusted builder are available for review upon request. Buyers must sign off on covenants. Floor plans available upon request. DO NOT ACCESS development without permission. This is an active construction site
| yesterday | Listing updated with changes from the MLS® | |
| 2 days ago | Status changed to Active | |
| 3 days ago | Listing first seen on site |
Listing information is provided by Participants of the Black Hills Association of REALTORS MLS. IDX information is provided exclusively for personal, non-commercial use, and may not be used for any purpose other than to identify prospective properties consumers may be interested in purchasing. Information is deemed reliable but not guaranteed. Copyright 2026, Black Hills Association of REALTORS MLS.
Data last updated at: 2026-03-14 05:45 AM UTC
